Tartan School
Weaving new threads between education and community
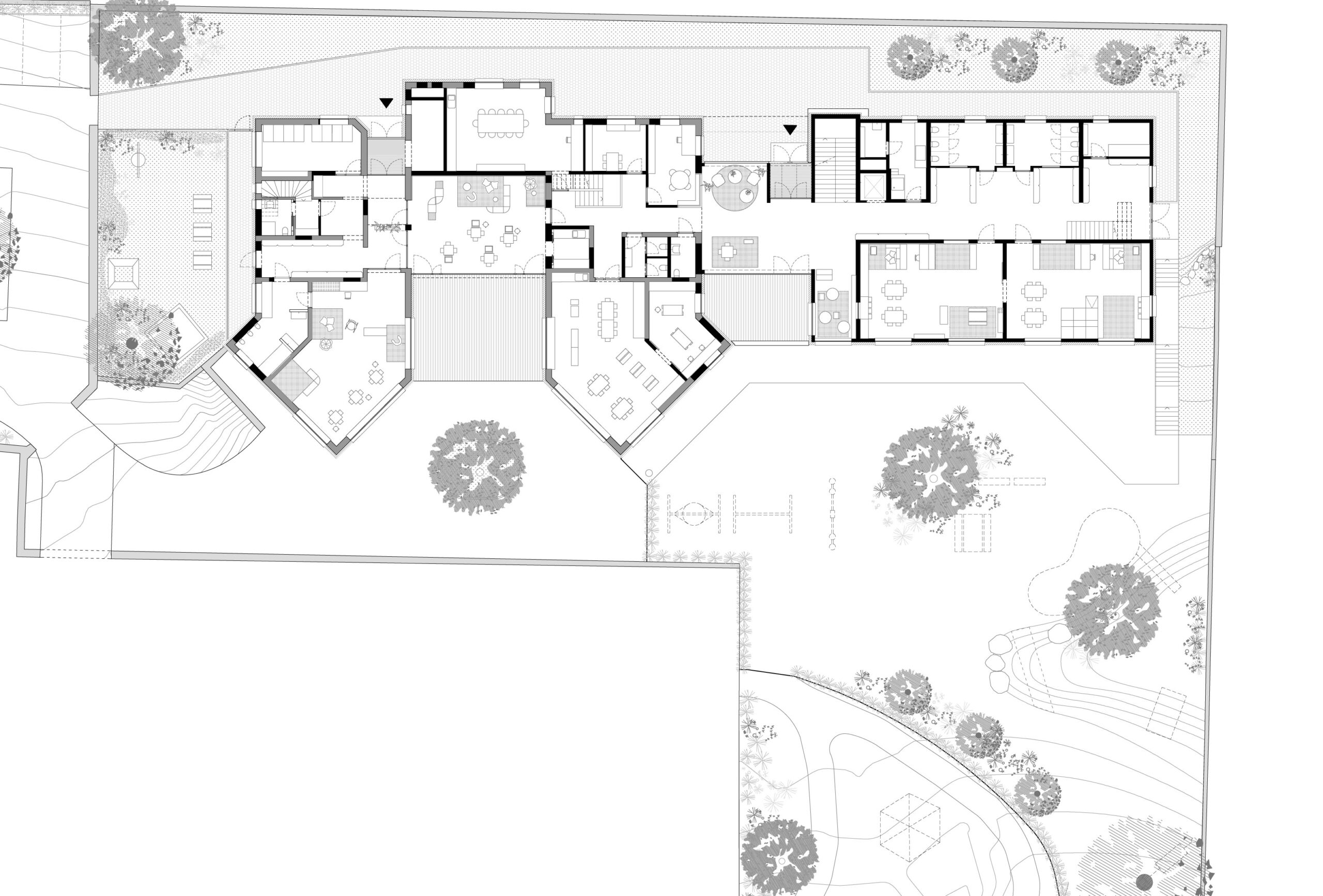
The Tartan School in Terlano is a contemporary educational complex resulting from the expansion of a 1990s structure, harmoniously set amidst the vineyards and orchards of the Adige Valley. The building is distinguished by its unique plaster cladding that replicates the pattern of tartan fabric in shades of “spring rain” green and yellow—an aesthetic choice designed to convey a sense of familiarity and seamless integration with the surrounding natural landscape.
The architecture is defined by a dynamic volume featuring an irregular zigzagging roofline and large trapezoidal windows that follow the slopes of the roof. By taking advantage of the site’s four-meter change in grade, the structure fluently organizes the spaces for the Nursery, Kindergarten, and Youth Center. While the upper floors are dedicated to classrooms and creative workshops, the lower level serves as a community hub, housing a dining hall, a gym, and an auditorium that are also open to public events.
Certified as a “Climate House A” building, the school balances formal innovation with high energy efficiency, offering welcoming and functional interiors that foster interaction between the school and the local community. Through its interplay of volumes and openings, the building ensures a constant visual connection with the territory and the nearby mountains, transforming the educational environment into an active element of the urban fabric.
.
Terlano (BZ), 2023
Client
Municipality of TerlanoProject Team
Sandy Attia, Matteo Scagnol, Laura Spezzoni, Lavinia AntichiDate
2013Date
19 Maggio 2022

