Basilica of knowledge
Elementary and Middle School
The new school in Villa Santina stands as the centerpiece of a national initiative to renew Italy’s school infrastructure, replacing an obsolete building with a contemporary, earthquake-safe structure. Designed in collaboration with De Mattio/Raffin Architects, the “Basilica of Knowledge” brings both primary and secondary schools under one roof, acting as a catalyst for the regeneration of the entire district. The intervention aims to transform the area into a true civic hub, designed to attract not only the local community but also residents from neighboring townships, with the addition of a school canteen and a future expansion of the sports hall.
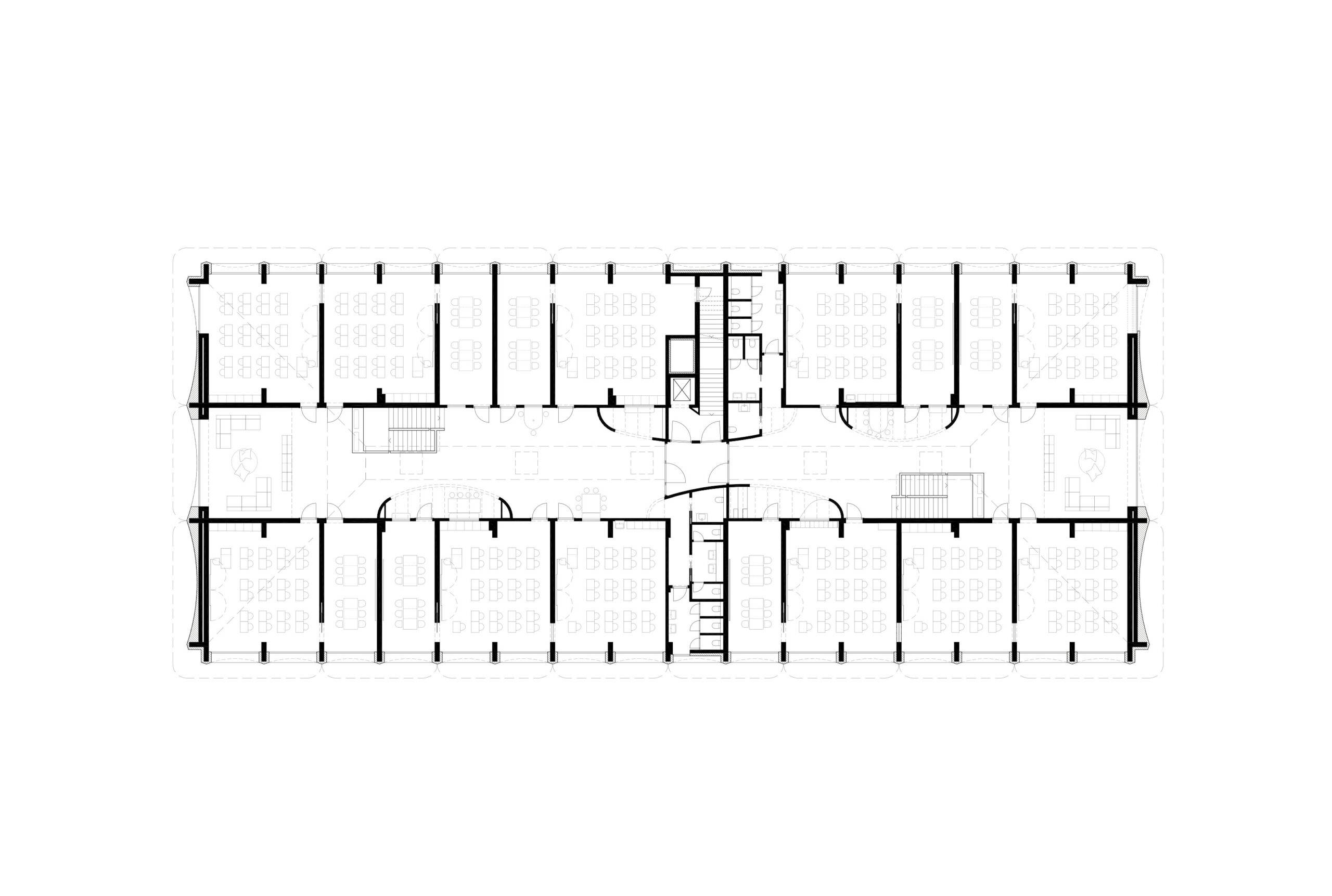
From an architectural perspective, the building draws inspiration from the Palladian Basilica, seeking harmony and rhythmic order through a rigorous 3.75-meter structural grid. This regularity, which reflects the dimensions of the classrooms, is reinterpreted through a sculpted, undulating facade that modulates natural light to create deep chiaroscuro effects. A deep portico at ground level serves as a sheltered threshold and connects the two independent school entrances, mediating the transition between the school grounds and the newly formed public square.
Inside, the spatial organization follows a mirrored symmetry that keeps the educational paths separate while fostering social interaction in a central polyvalent core dedicated to informal learning. While administrative offices and laboratories occupy the ground floor, the primary educational spaces are elevated to the “piano nobile.” Here, a monumental hall illuminated by square skylights serves as the building’s spine, culminating in learning “living rooms” with large windows that project views toward the surrounding landscape.
The project concludes with a reflection on pedagogical flexibility: classrooms are designed for reconfiguration via sliding doors, while curvilinear insertions break the rigidity of the structural grid to create intimate retreat corners. Architecture thus becomes an educational tool offering a plurality of spatial conditions—alternating between collaborative areas and quiet spaces—to adapt to the diverse rhythms of contemporary learning.
Villa Santina (UD), 2025
Client
Villa Santina MunicipalityProject Team
Sandy Attia, Matteo Scagnol, Giorgio Cappellato, Martina SalmasoDate
2025Date
22 Maggio 2022

