Ora Elementary School
Elementary school Addition and renovation
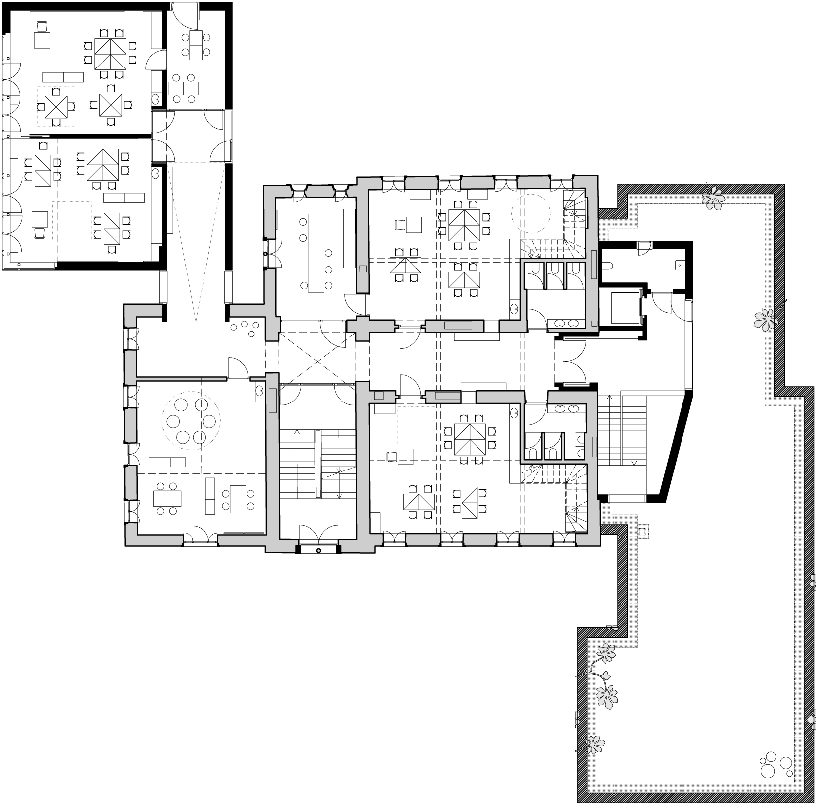
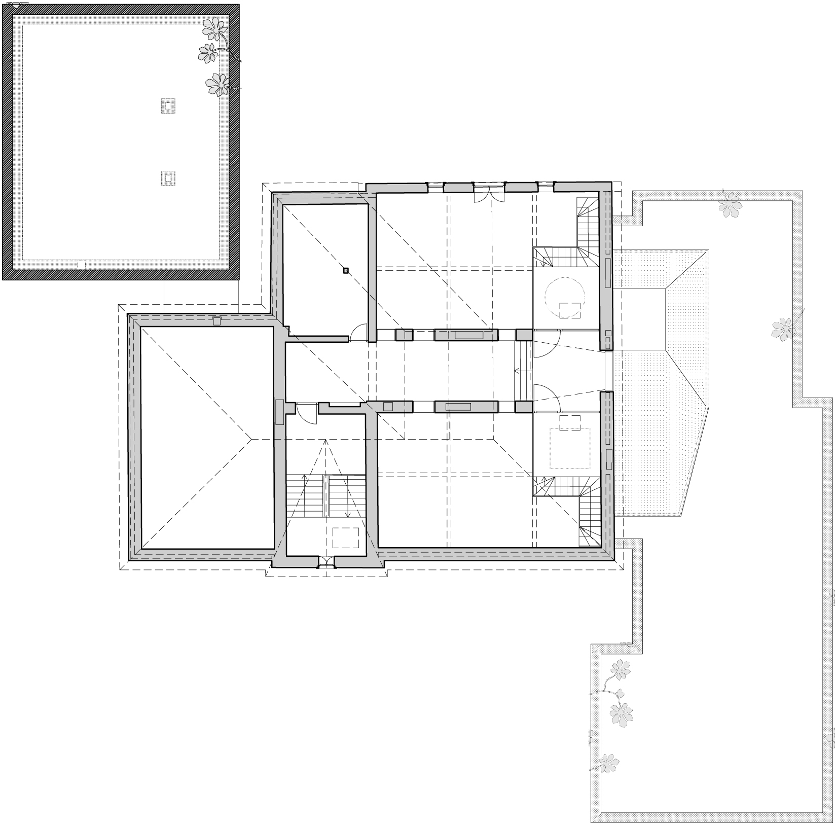
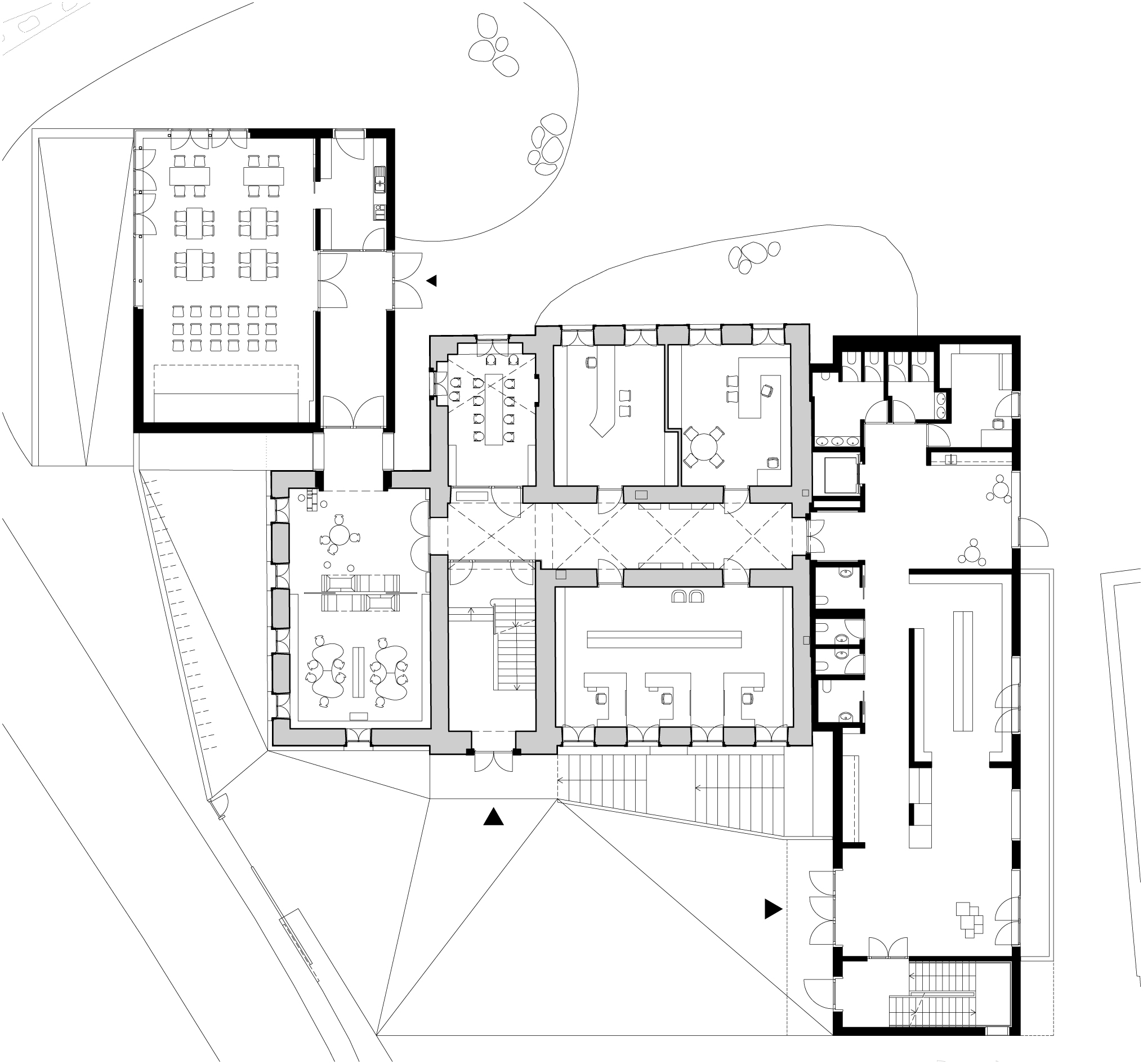
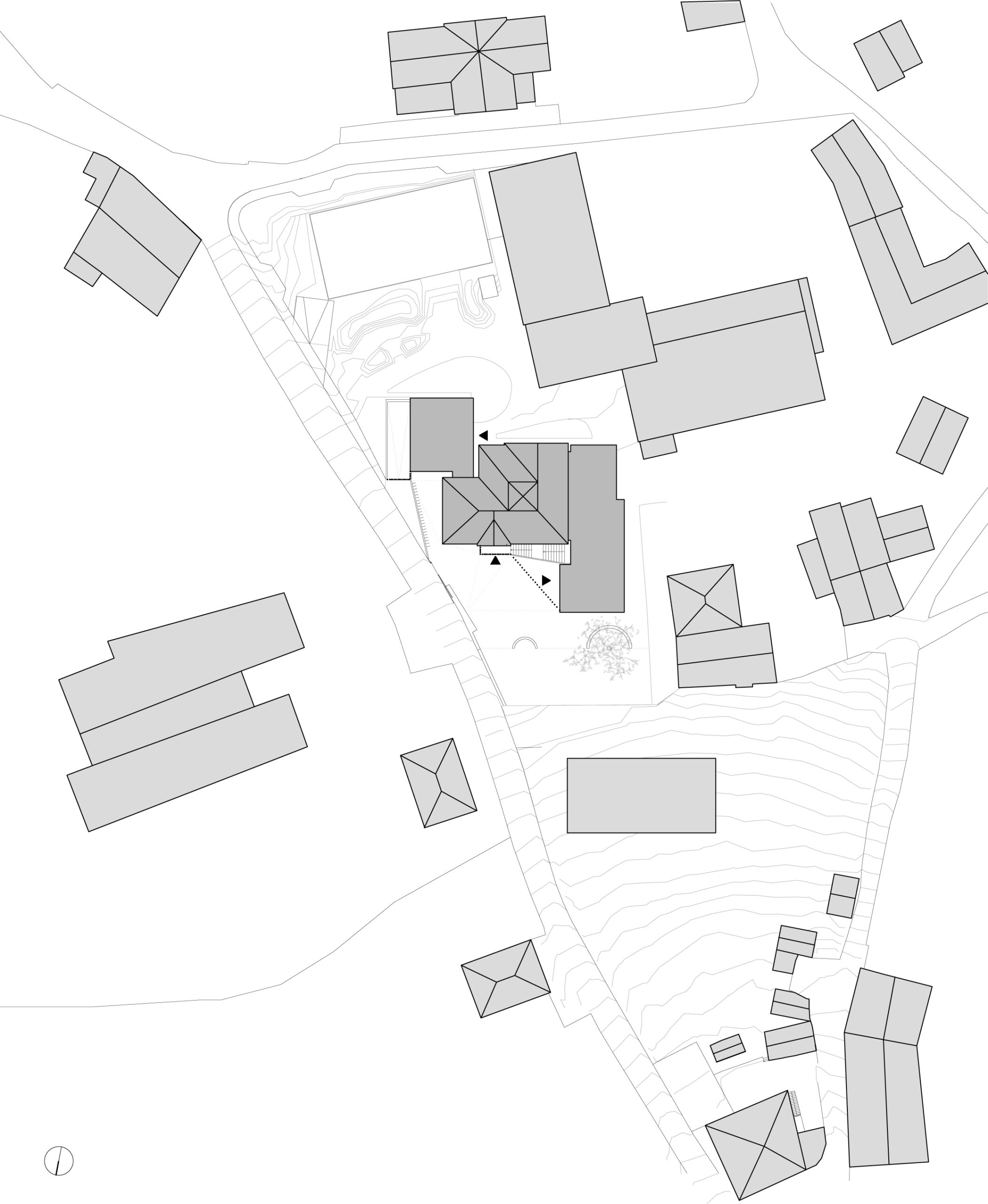
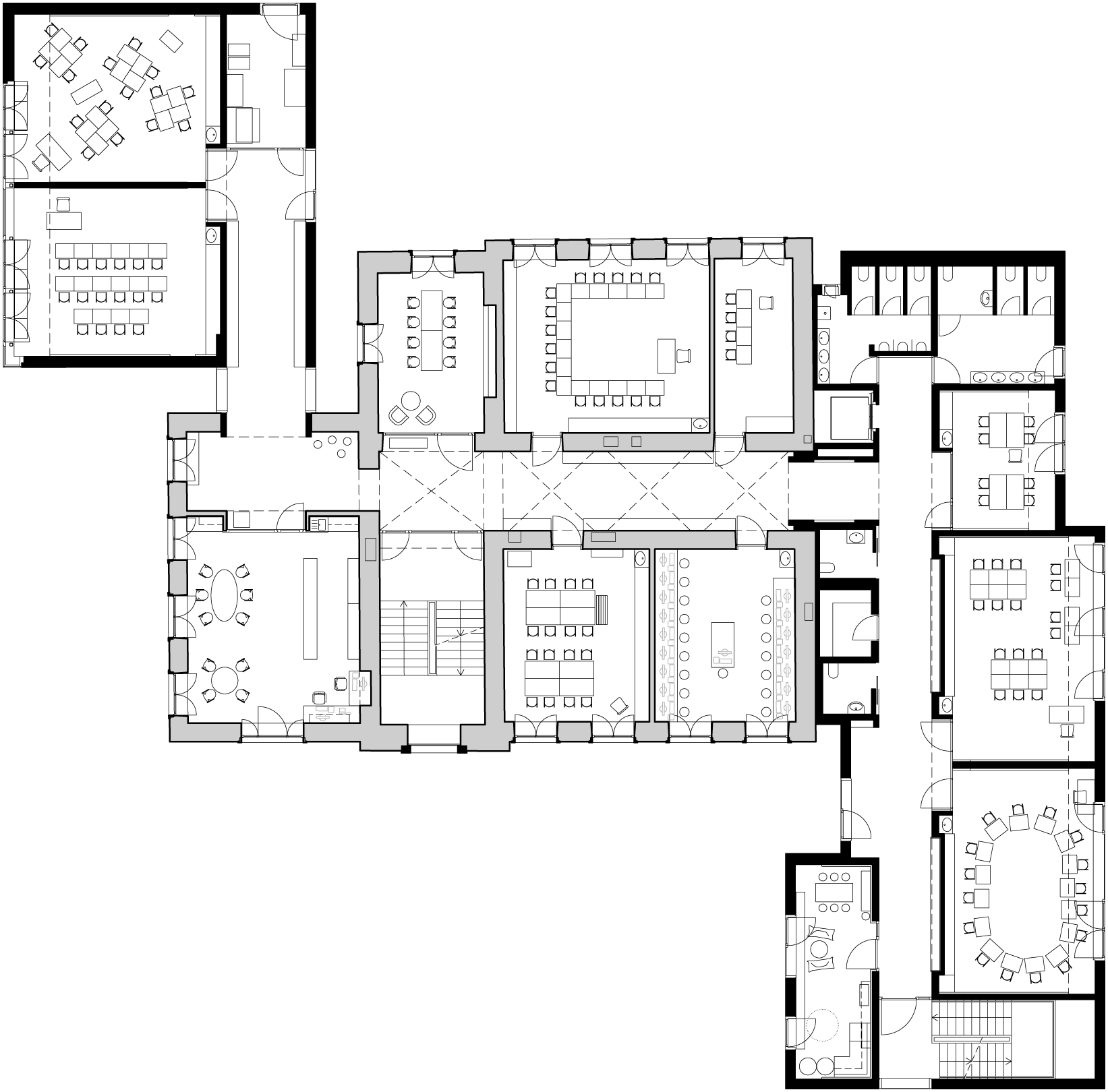
The project integrates the historical building with two new white volumes that frame a centennial chestnut tree, whose natural silhouette is imprinted on both the facades and the interior concrete walls. A fluid, zigzagging corridor connects the three structures, separating the common services on the lower floors from the educational spaces on the upper levels.
The architecture reflects an innovative pedagogical vision that moves beyond the traditional classroom: corridors and niches are transformed into informal learning venues. Through the use of glass walls and dynamic openings, the school becomes an agile and communicative environment where every space is designed to support education.
.
Ora (BZ), 2013
Client
Municipality of OraProject Team
Sandy Attia, Matteo Scagnol, Michaela Wolf, Gerd BergmeisterDate
2013Date
18 Maggio 2022

